Bokel - Repräsentativer Winkelbungalow in ruhiger Wohnlage – ein Zuhause zum Wohlfühlen

Überblick
Anzahl Zimmer 6
Anzahl Badezimmer 2
Anzahl Schlafzimmer 3
Baujahr 1998
Energieeffizienzklasse C
Preise
Preis 499.000,00 €
Preis / m² 2.376,19 €
Courtage 3.57 % inkl. 19 % MwSt. vom Kaufpreis
Die Provision ist verdient und fällig mit Abschluss des notariellen Kaufvertrages.

Objektbeschreibung

Dieser wunderschöne, repräsentative Winkelbungalow aus dem Jahr 1998 liegt in einer ruhigen und gepflegten Wohnstraße und besticht durch seine harmonische Architektur sowie den durchdachten Grundriss. Auf rund 210 m² Wohnfläche erwartet Sie ein großzügiges Raumgefühl mit insgesamt sechs Zimmern, die viel Platz für individuelle Wohnideen bieten. Mittelpunkt des Hauses ist der große, lichtdurchflutete Wohn- und Essbereich, der mit seiner offenen und einladenden Atmosphäre zum Entspannen und Verweilen einlädt – ideal für gemütliche Stunden im Kreis der Familie oder gesellige Abende mit Freunden.

Im Erdgeschoss befinden sich neben der gemütlichen Küche, dem großzügigen Wannen- und Duschbad sowie dem separaten Gäste-WC auch das Schlafzimmer mit angrenzendem Ankleidezimmer – ein komfortabler Rückzugsort mit viel Privatsphäre. Eine Fußbodenheizung in der Küche, im Flur, im Badezimmer sowie im Gäste-WC sorgt hier zusätzlich für behagliche Wärme und ein angenehmes Wohngefühl.

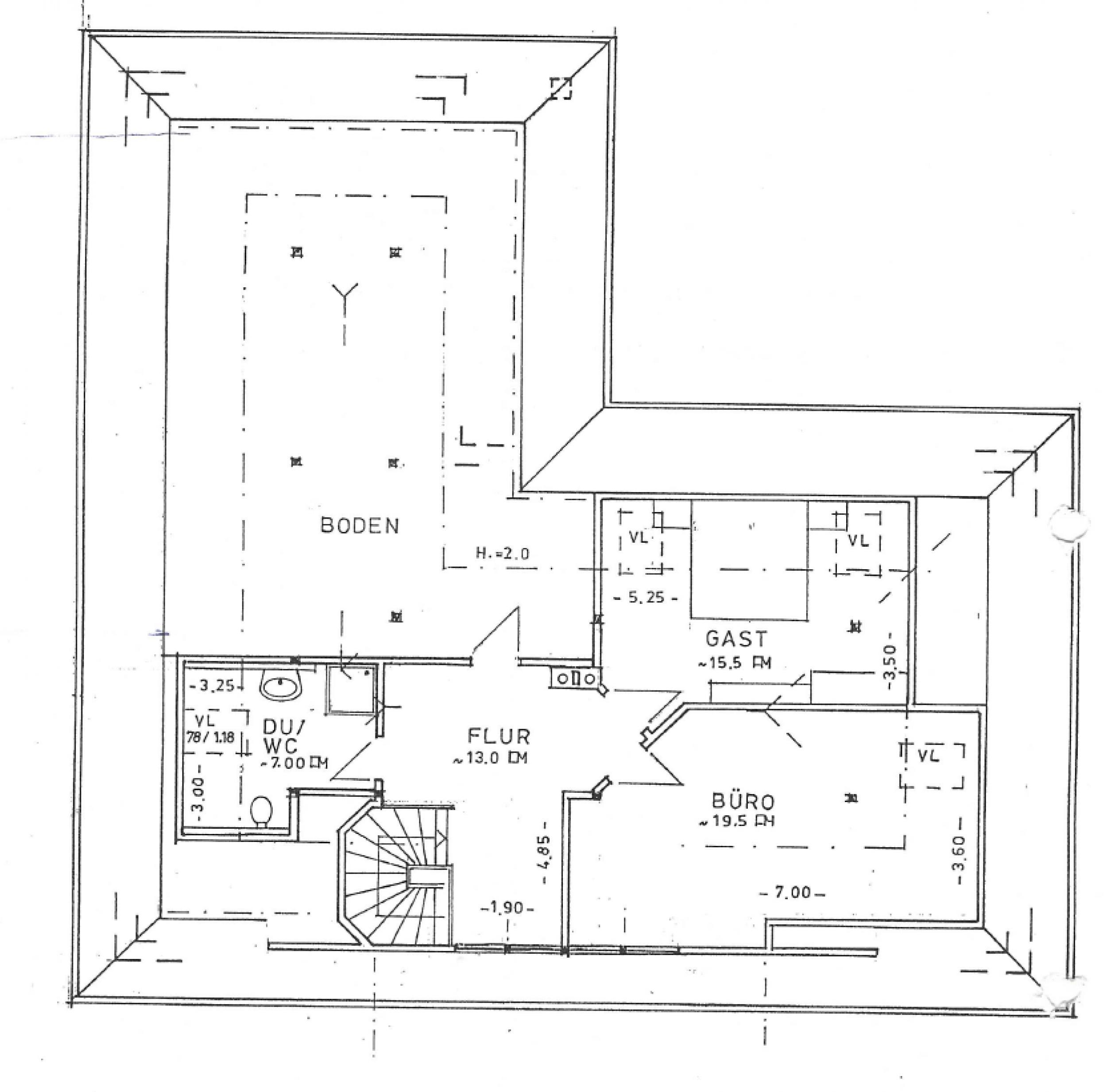
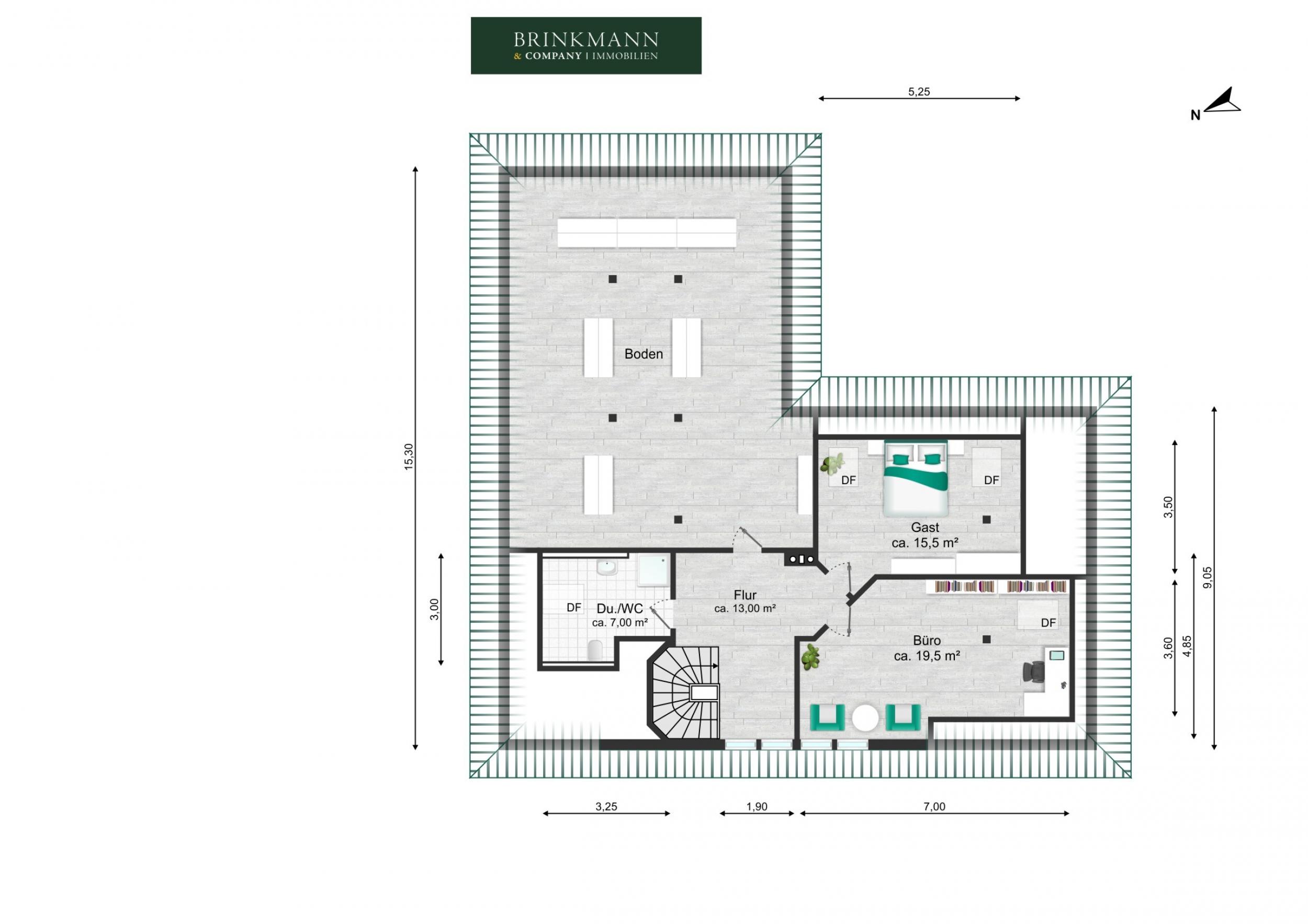
Im Dachgeschoss ergänzen zwei weitere Schlafzimmer sowie ein großes Duschbad das Raumangebot und schaffen zusätzliche Flexibilität für Kinder, Gäste oder Homeoffice.

Der beheizte Vollkeller bietet vielseitige Nutzungsmöglichkeiten – ob als Hobbyraum, Fitnessbereich oder zusätzlicher Stauraum – und präsentiert sich ebenso gepflegt wie der Rest der Immobilie. Eine Doppelgarage mit angrenzender Werkstatt und direktem Zugang ins Haus sorgt für besonderen Komfort im Alltag. Das liebevoll und pflegeleicht angelegte Grundstück rundet das harmonische Gesamtbild perfekt ab.

Dieser Bungalow überzeugt durch seine wertige Ausstattung, die Großzügigkeit der Räume und das stimmige Wohngefühl – ein Zuhause zum Ankommen, Leben und Wohlfühlen, das man heute nur noch selten findet.


Lage

Die Immobilie befindet sich in einer ruhigen und gewachsenen Wohnlage im beliebten Beverstedter Ortsteil Bokel. Das Umfeld ist geprägt von gepflegten Einfamilienhäusern und großzügigen Gärten – ideal für alle, die Wert auf eine angenehme Nachbarschaft und ein entspanntes Wohnumfeld legen.

Bokel bietet eine gute Infrastruktur für den täglichen Bedarf: Einkaufsmöglichkeiten, Bäcker, Ärzte, Kindergarten und Grundschule sind im Ort bzw. in der näheren Umgebung vorhanden. Weiterführende Schulen, umfangreichere Einkaufsmöglichkeiten sowie kulturelle Angebote finden sich im nahegelegenen Beverstedt oder in den Städten Bremerhaven und Bremervörde, die jeweils in kurzer Fahrzeit erreichbar sind.

Die Anbindung an den regionalen und überregionalen Verkehr ist sehr gut. Über die Landes- und Bundesstraßen sind sowohl Bremerhaven als auch Bremen bequem zu erreichen, sodass auch Berufspendler von dieser Lage profitieren.

Die naturnahe Umgebung mit Wiesen, Feldern und kleinen Wäldern lädt zu Spaziergängen, Fahrradtouren und erholsamen Stunden im Grünen ein. Hier verbindet sich ruhiges, ländliches Wohnen mit einer guten Erreichbarkeit städtischer Angebote – ein idealer Ort für Familien und alle, die das Leben im Grünen schätzen.