Burglesum - Familienfreundliches Reihenendhaus in bevorzugter Lage

Überblick
Wohnraum in m² 151,54
Anzahl Zimmer 7
Anzahl Badezimmer 1
Anzahl Schlafzimmer 5
Baujahr 1966
Energieeffizienzklasse G
Preise
Preis 249.000,00 €
Preis / m² 1.643,13 €
Courtage 3.57 % inkl. 19 % MwSt. vom Kaufpreis
Die Provision ist verdient und fällig mit Abschluss des notariell beurkundeten Kaufvertrages.

Objektbeschreibung

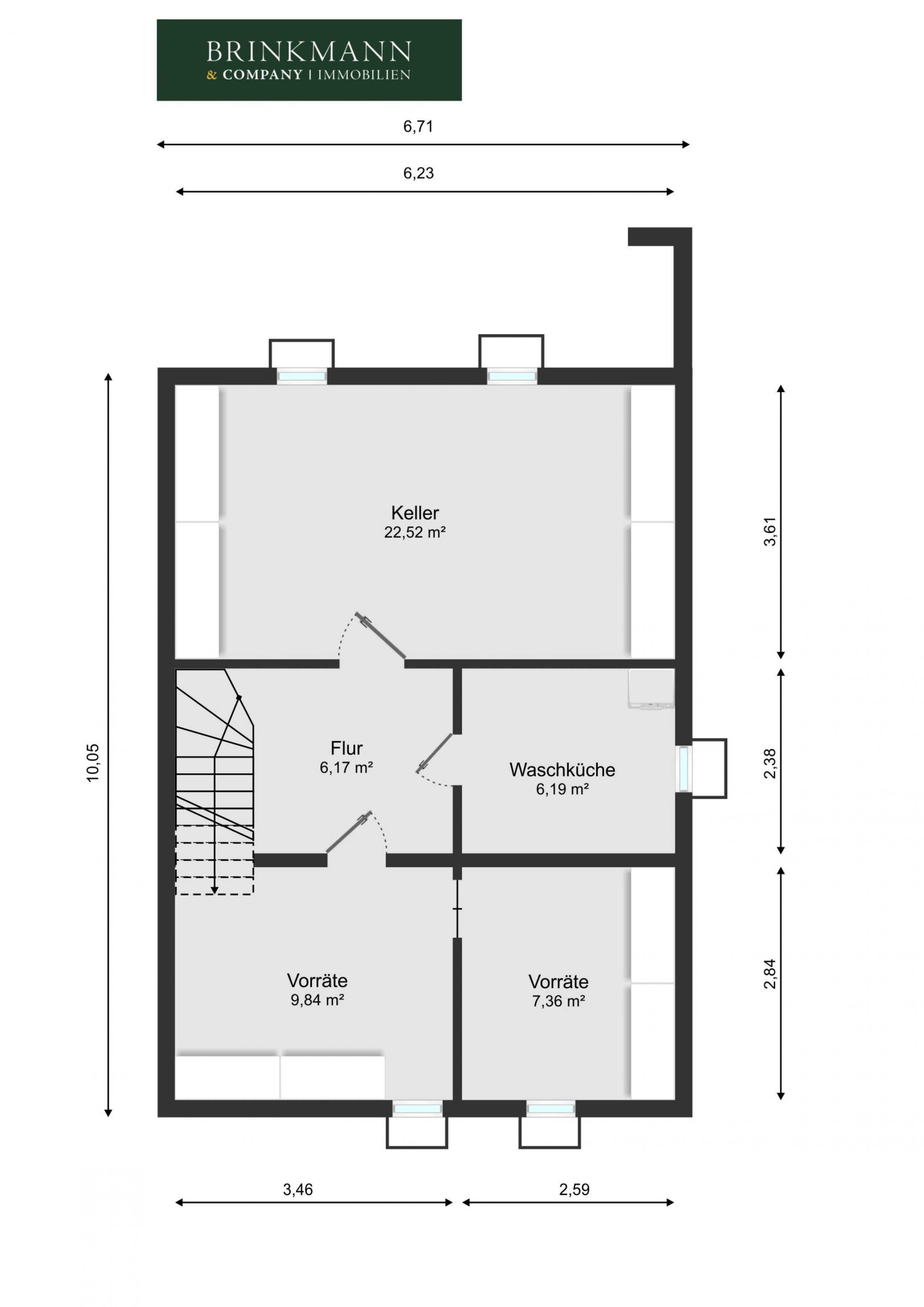
Dieses familienfreundliche Reihenendhaus im beliebten Bremer Stadtteil Burglesum überzeugt durch seinen großzügigen Grundriss, vielfältige Nutzungsmöglichkeiten und ein sonniges Grundstück von etwa 419 m². Das im Jahr 1966 errichtete Haus bietet rund 151,54 m² Wohnfläche, verteilt auf insgesamt sieben Zimmer sowie zwei Küchen, und eignet sich ideal für größere Familien oder Mehrgenerationenkonzepte.

Bereits im Erdgeschoss zeigt sich die durchdachte Aufteilung: Ein großzügiger Windfang empfängt die Bewohner und bietet direkten Zugang zum Gäste-WC, einem praktischen Abstellraum sowie dem Kellergeschoss. Die Küche ist mit einem vorgelagerten Essbereich verbunden und ermöglicht kurze Wege im Alltag. Das angrenzende, helle Wohnzimmer öffnet sich zum beheizten Wintergarten, der zu jeder Jahreszeit zusätzlichen Wohnkomfort bietet und einen schönen Blick in den Garten freigibt.

Im Obergeschoss stehen vier gut geschnittene Schlafräume sowie ein klassisches Wannenbad zur Verfügung. Das Dachgeschoss wurde in den Jahren 2000/2001 ausgebaut und präsentiert sich heute mit einem großzügigen Wohnraum sowie einer weiteren Küche. Dadurch eröffnen sich vielfältige Nutzungsmöglichkeiten – sei es für ältere Kinder, Gäste oder zur Abtrennung eines kleinen Arbeitsbereichs.

Zum Haus gehört außerdem eine Garage, die für zusätzlichen Komfort sorgt. Das Objekt weist insgesamt Modernisierungsbedarf auf und bietet damit viel Potenzial für handwerklich geschickte Käufer, die sich ihr neues Zuhause nach eigenen Vorstellungen gestalten möchten.

Ein vielseitiges Haus in gefragter Lage – ideal für Familien, die Raum, Gestaltungsmöglichkeiten und ein schönes Grundstück suchen.


Lage

Burglesum besticht durch seine Mischung aus ruhiger, fast ländlicher Atmosphäre und guter Infrastruktur. Der Stadtteil wird auf Grund seiner vielen Grünflächen und der Nähe zur Natur oft als „Vorgarten Bremens“ bezeichnet.

Trotz der ruhigen und grünen Umgebung ist die infrastrukturelle Anbindung gut: Im Stadtteil gibt es Einkaufsmöglichkeiten, Apotheken, Ärzte und weitere Versorgungsangebote; Grundschulen, Kindergärten und weitere Bildungseinrichtungen befinden sich meist in kurzer Entfernung.

Gleichzeitig profitieren Anwohner von der verkehrstechnischen Anbindung: Burglesum ist mit mehreren Buslinien an das Verkehrsnetz angeschlossen; über diese bestehen gute Verbindungen in andere Stadtteile und zur Innenstadt.

Insgesamt kombiniert die Objektlage eine ruhige, grüne Wohnlage mit einer familiengerechten Infrastruktur und guter Anbindung — ideal für alle, die naturnah wohnen möchten, ohne auf Versorgung und Mobilität verzichten zu müssen.