Leherheide - Modernisierte 4-Zimmer-Wohnung in Top-Lage

Überblick
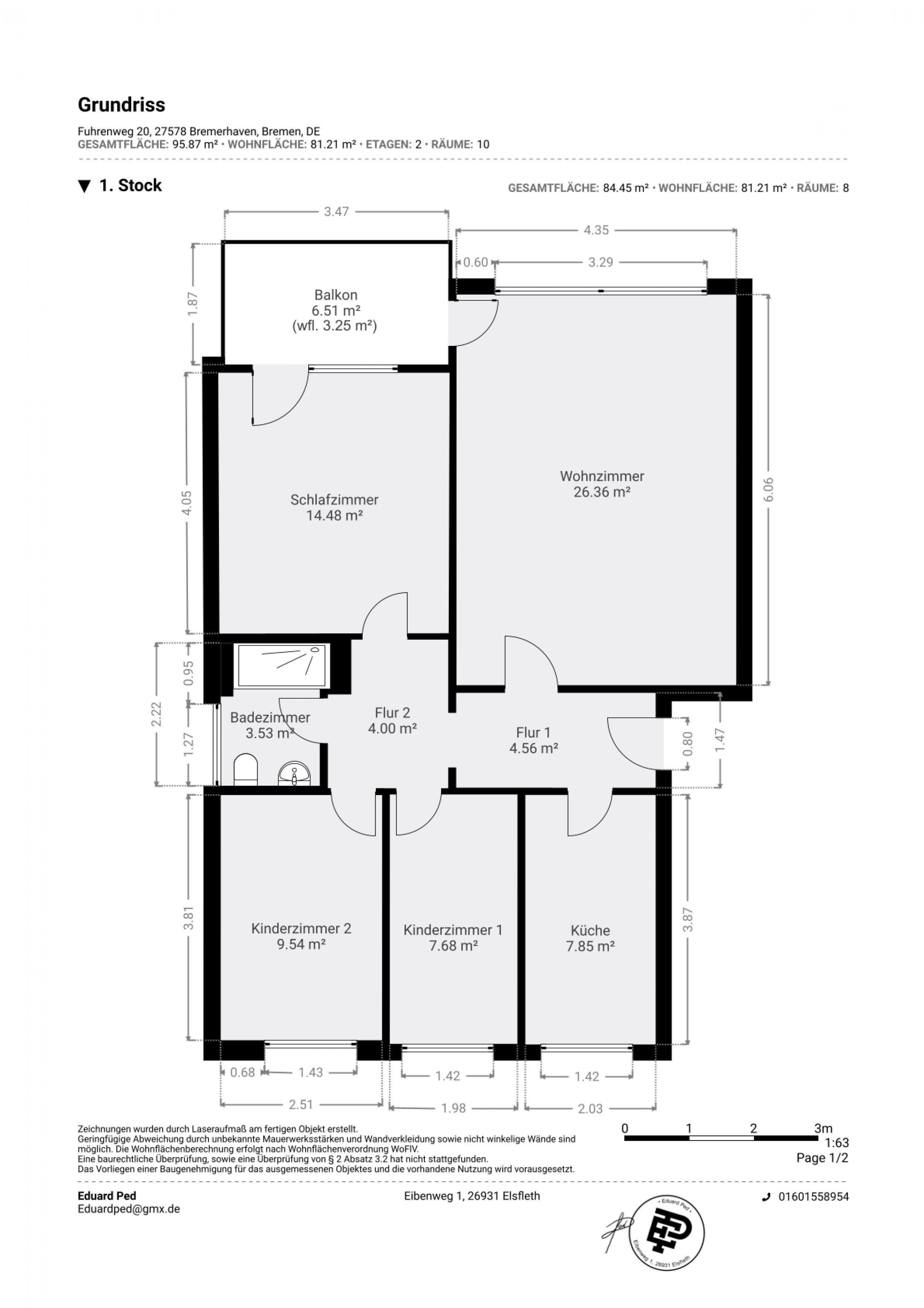
Etage 2
Wohnraum in m² 84,00
Anzahl Zimmer 4
Anzahl Badezimmer 1
Baujahr 1971
Energieeffizienzklasse D
Preise
Preis 149.900,00 €
Preis / m² 1.784,52 €
Courtage 3.57% inkl. 19% MwSt vom Kaufpreis
Die Provision ist verdient und fällig mit Abschluss des notariellen Kaufvertrages.

Objektbeschreibung

Diese charmante 4-Zimmer-Etagenwohnung in Bremerhaven vereint auf 84 m² Wohnfläche modernen Komfort mit durchdachter Raumaufteilung und bietet Singles sowie jungen und älteren Paaren und kleinen Familien ein ideales erstes Eigenheim. Die im 2. Obergeschoss gelegene Wohnung wurde 2019 umfassend modernisiert und präsentiert sich heute in einem zeitgemäßen und gepflegten Zustand.

Bei der Modernisierung im Jahr 2019 wurde ein besonderes Augenmerk auf Qualität und Funktionalität gelegt. Die Elektrik in der Küche wurde komplett erneuert, die Fenster zur Südseite ebenfalls im Jahr 2019 ausgetauscht. Die vier Zimmer bieten vielfältige Nutzungsmöglichkeiten – ob als Schlafzimmer, Kinderzimmer, Arbeitszimmer oder zusätzlicher Wohnraum. Durch die großzügige Raumaufteilung lässt sich die Wohnung flexibel an unterschiedliche Lebenssituationen anpassen.

Das Tageslichtbad mit Dusche überzeugt durch seine moderne und ansprechende Gestaltung. Die Bodenbeläge aus Vinyl und Fliesen sind nicht nur optisch ansprechend, sondern auch pflegeleicht und langlebig – ideal für den Alltag mit Kindern. Die im Kaufpreis enthaltene Einbauküche ermöglicht einen sofortigen Einzug ohne zusätzliche Investitionen. Ein praktischer Kellerraum bietet ausreichend Stauraum für Fahrräder, Kinderwagen und saisonale Gegenstände. Die Zentralheizung wird mit Öl betrieben und sorgt für angenehme Wärme in allen Räumen.

Der Balkon, mit einer Südausrichtung, lädt dazu ein, die Sonnenstunden im Freien zu genießen – ob beim morgendlichen Kaffee oder an warmen Sommerabenden.

Grundriss


Lage

Die Lage dieser besonderen Wohnung verdient wirklich Ihre Aufmerksamkeit. Sie befindet sich in einer äußerst praktischen und attraktiven Umgebung in Bremerhaven.

Ein Fußweg von nur fünf Minuten bringt Sie zu den öffentlichen Verkehrsmitteln, was eine bequeme und schnelle Fortbewegung ermöglicht. Die nächste Autobahn ist ebenfalls nur fünf Fahrminuten entfernt, ideal für Pendler und Ausflüge. Der Bahnhof Lehe ist in etwa acht Fahrminuten erreichbar, was zusätzliche Flexibilität für Ihre Reisen bietet.

In unmittelbarer Nähe finden Sie alles, was Sie für den täglichen Bedarf benötigen. Schulen, Sportvereine und Geschäfte sind fußläufig oder mit dem Fahrrad erreichbar, sodass Sie alles bequem erledigen können. Darüber hinaus ist das Spaßbad "Bad 1" nur wenige Minuten entfernt, perfekt für Freizeitaktivitäten. Ein hochwertiges Fitnessstudio ist ebenfalls in wenigen Minuten mit dem Fahrrad zu erreichen.

Diese hervorragende Lage macht diese Wohnung zu einer idealen Wahl für jeden, der Wert auf Komfort, Zugänglichkeit und eine lebendige Umgebung legt.

Ebenfalls nur knapp 10 Minuten mit dem Fahrrad entfernt ist der Speckenbütteler Park.