Schönebeck - Solides Reihenmittelhaus in ruhiger Lage mit viel Potenzial

Überblick
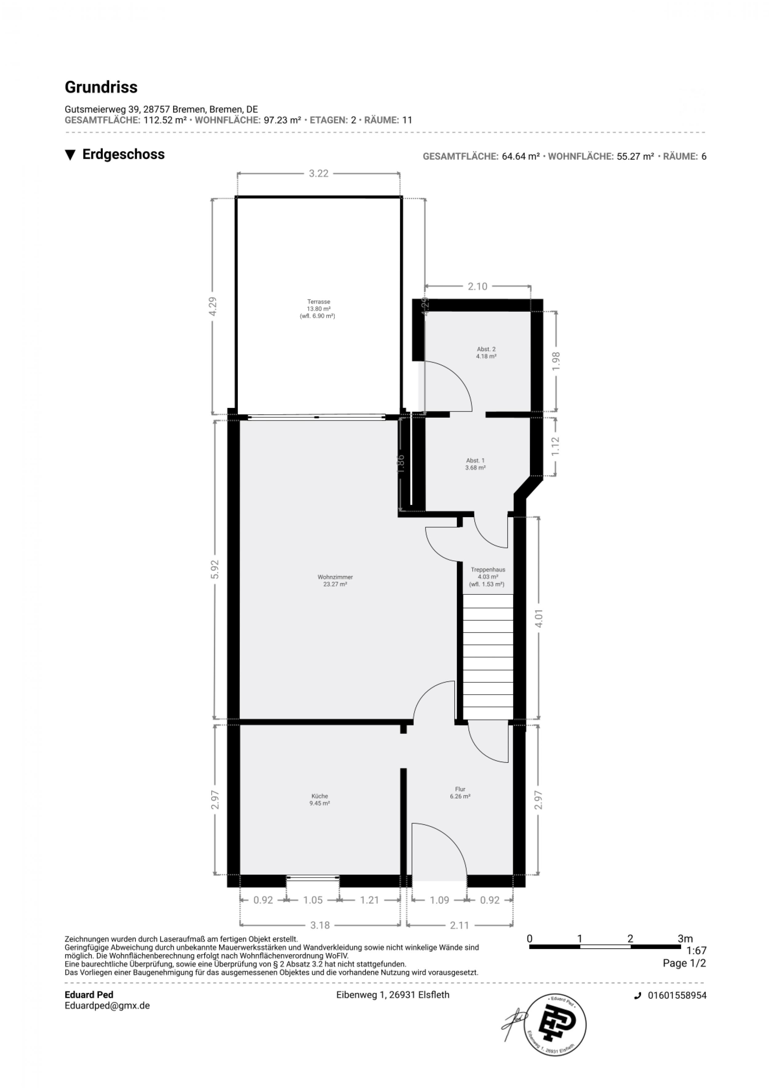
Wohnraum in m² 107,00
Anzahl Zimmer 4
Anzahl Badezimmer 1
Anzahl Schlafzimmer 3
Baujahr 1963
Energieeffizienzklasse E
Preise
Preis 229.000,00 €
Preis / m² 2.140,19 €
Courtage 3.57% inkl. 19% MwSt vom Kaufpreis
Die Provision ist verdient und fällig mit Abschluss des notariellen Kaufvertrages.

Objektbeschreibung

Dieses im Jahr 1963 erbaute Reihenmittelhaus bietet auf einer Wohnfläche von ca. 107 m² viel Raum für individuelle Wohnideen. Auf einem Grundstück von 144 m² gelegen, präsentiert sich die Immobilie als ideales Zuhause für Paare oder Familien, die Wert auf eine ruhige Umgebung und gleichzeitig eine gute Anbindung legen.

Das Haus verfügt über insgesamt vier Zimmer, eine neuwertige Küche sowie ein Badezimmer. Eine Einbauküche ist bereits vorhanden und bietet eine solide Basis für den Alltag. Sowohl der Balkon im Obergeschoss als auch die Terrasse im Erdgeschoss laden zum Entspannen im Freien ein. Der Garten befindet sich noch im ursprünglichen Zustand und kann ganz nach den eigenen Vorstellungen gestaltet werden – ob als grünes Refugium, Spielfläche oder gemütliche Sitzecke.

Die Immobilie verfügt über viel Potenzial, was Ihnen die Möglichkeit gibt, das Haus nach eigenen Wünschen zu modernisieren und ein Zuhause mit individuellem Charakter zu schaffen. Die Grundsubstanz des Gebäudes ist solide, sodass mit etwas handwerklichem Geschick und Kreativität ein attraktives Eigenheim entstehen kann. Ob Sie direkt einziehen und Schritt für Schritt renovieren oder erst einmal so bleiben möchten – Sie entscheiden selbst, wann und wo Sie investieren. Die hochwertige Gastherme ist von der Firma Vissmann.

Für viele junge Familien und Paare ist genau das der entscheidende Vorteil: Ein bezahlbarer Einstieg ins Eigenheim, bei dem die monatliche Belastung kalkulierbar bleibt und Sie nicht mehr in die Tasche eines Vermieters zahlen, sondern in Ihr eigenes Zuhause.

Wenn Sie bereit sind, von der Miete ins Eigentum zu wechseln, ist dieses Reihenhaus eine solide Basis für Ihren nächsten Lebensabschnitt.


Lage

Diese Immobilie befindet sich in einer hervorragenden Lage in Bremen Schönebeck, ein Ortsteil von Vegesack, die durch eine wirklich tolle Infrastruktur besticht. Nur einen kurzen Fußweg von öffentlichen Verkehrsmitteln entfernt, genießen Sie eine brillante Anbindung an die Stadt und ihre Umgebung.

Die nächste Autobahn ist lediglich drei Fahrminuten entfernt, was Ihnen eine schnelle und unkomplizierte Reisemöglichkeit bietet. Der Bahnhof ist ebenfalls nur drei Fahrminuten entfernt, sodass Sie das Bremer Zentrum bequem mit dem Zug erreichen können. Der nächste Flughafen ist in nur 23 Fahrminuten erreichbar, ideal für Reisende.

Einkaufsmöglichkeiten und Schulen sind ebenfalls in der Nähe,, was den Alltag besonders praktisch und angenehm gestaltet. Diese Lage vereint Komfort, Zugänglichkeit und eine fantastische Infrastruktur, perfekt für jeden, der Wert auf eine optimale Wohnumgebung legt. Ruhig und dennoch gut angebunden.