St.-Magnus - Gepflegte Hochparterrewohnung in Nähe zum Park

Überblick
Etage 1
Wohnraum in m² 117,00
Anzahl Zimmer 3
Baujahr 1978
Energieeffizienzklasse E
Preise
Preis 209.000,00 €
Preis / m² 1.786,00 €
Courtage 3,57 % inkl. gesetzl. MwSt. vom Kaufpreis
Die Provision ist verdient und fällig mit Abschluss des notariellen Kaufvertrages.
Kontakt

Objektbeschreibung

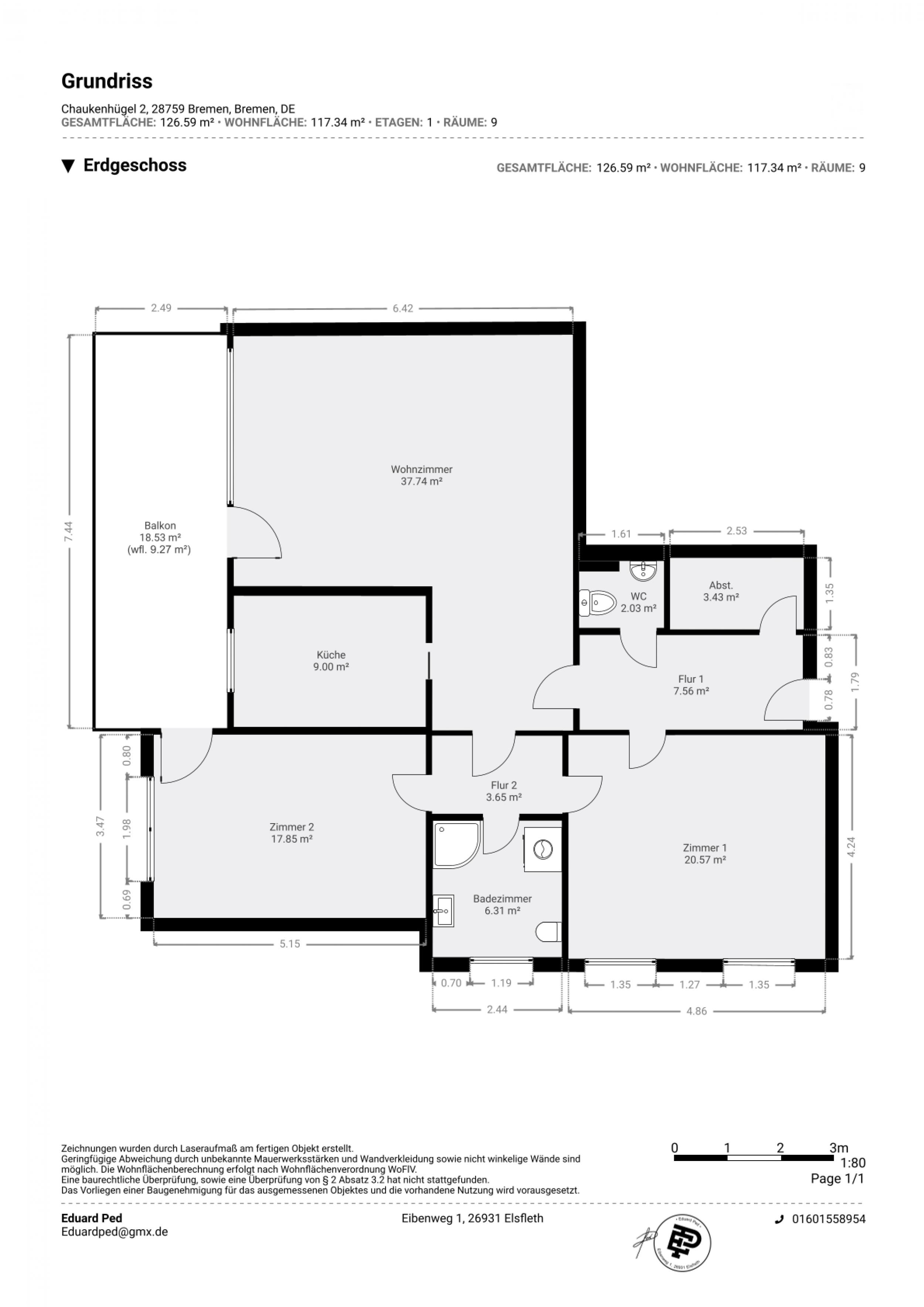
Diese gepflegte und großzügig geschnittene Eigentumswohnung im Hochparterre überzeugt mit einem durchdachten Grundriss, hellen Räumen und einem hohen Wohnkomfort. Mit ca. 117 m² Wohnfläche bietet sie ein außergewöhnlich angenehmes Platzangebot und eignet sich ideal für Paare oder Einzelpersonen, die Wert auf entspanntes, komfortables Wohnen und ausreichend Bewegungsfreiheit legen.

Herzstück der Wohnung ist der rund 40 m² große, lichtdurchflutete Wohn- und Essbereich. Große Fensterflächen schaffen eine freundliche Atmosphäre und bieten viel Raum für eine großzügige Wohnlandschaft, einen Esstisch für Gäste oder eine zusätzliche Lese- bzw. Arbeitsecke. Hier entsteht ein offenes, luftiges Wohngefühl mit viel Tageslicht.

Direkt angrenzend erweitert die überdachte Loggia mit ca. 10 m² den Wohnraum ins Freie. Sie bietet einen geschützten Platz zum Entspannen und lässt sich dank elektrischer Markise komfortabel beschatten – ideal für ruhige Stunden an der frischen Luft zu jeder Jahreszeit.

Zwei weitere gut geschnittene Zimmer ermöglichen eine flexible Nutzung als Schlaf-, Gäste- oder Arbeitszimmer. Der durchdachte Grundriss bietet darüber hinaus Potenzial zur Schaffung eines zusätzlichen Zimmers und passt sich somit unterschiedlichen Lebenssituationen an.

Die Ausstattung präsentiert sich gepflegt und zeitlos. Hochwertige Vinyl- und Laminatböden sorgen in den Wohnbereichen für eine warme, wohnliche Optik, während Küche und Bad mit langlebigen Fliesen ausgestattet sind. Die Lage im Hochparterre ermöglicht einen bequemen Zugang zur Wohnung und bietet gleichzeitig ein angenehmes Maß an Privatsphäre. Ein eigener Tiefgaragenstellplatz rundet das Angebot ab und sorgt für sicheres sowie wettergeschütztes Parken direkt am Haus.

Insgesamt bietet diese Wohnung viel Platz, Komfort und eine hohe Lebensqualität – ideal für alle, die großzügig, ruhig und langfristig sorgenfrei wohnen möchten.

Sie sind Neugierig geworden? Stellen Sie jetzt Ihre unverbindliche Anfrage und Sie erhalten umgehend das ausführliche Exposé mit weiteren, ineressanten Details und sämtlichen Informationen zum Objekt. Wir freuen uns darauf, Sie bald persönlich durch Ihr neues Zuhause zu führen.


Lage

Die Wohnung liegt in einer ruhigen und gepflegten Wohnumgebung im beliebten Stadtteil St. Magnus. Die Nachbarschaft ist geprägt von viel Grün, gepflegten Wohnanlagen und einer entspannten Atmosphäre – ideal für Menschen, die komfortabel und ruhig wohnen möchten.

Direkt vor der Haustür lädt der weitläufige Knoops Park zu Spaziergängen, Radtouren oder entspannten Stunden im Freien ein. Vereine und Freizeitangebote im Stadtteil bieten zusätzliche Möglichkeiten zur aktiven Gestaltung des Alltags und zum Pflegen sozialer Kontakte.

Die Infrastruktur ist hervorragend: Supermärkte, Bäckereien, Apotheken, Ärzte und Banken sind in wenigen Minuten erreichbar, ebenso Cafés und Restaurants für eine angenehme Freizeitgestaltung.

Besonders hervorzuheben ist die Nähe zur Constructor University Bremen, die nicht nur Bildung und Kultur bietet, sondern auch ein lebendiges Umfeld schafft.

Die Kombination aus ruhiger Lage, viel Grün, guter Nahversorgung, Freizeitmöglichkeiten und hochwertigen Einrichtungen macht diesen Standort besonders attraktiv für Menschen, die Wert auf Komfort, Lebensqualität und ein entspanntes, sorgenfreies Wohnen legen.

Sie sind an der genauen Lage und der Adresse interessiert? Stellen Sie jetzt Ihre unverbindliche Anfrage und Sie erhalten umgehend das ausführliche Exposé mit weiteren interessanten Details und Informationen zur exakten Lage der Immobilie. Wir freuen uns darauf Ihnen Ihre neue Wongegend zu präsentieren.

Mobiliar

- 3 Zimmer
- ca. 120 qm Wohnfläche
- großer, lichtdurchfluteter Wohn-/ Essbereich mit ca. 40 qm Fläche
- überdachte Loggia mit ca. 10 qm Fläche
- elektrische Markise
- hochwertiger Vinyl-Bodenbelag, Laminat sowie Fliesenboden
- Tiefgaragenstellplatz